A Escola Municipal Senador Feijó, em Campinas do Norte, voltou ao centro do debate público após uma série de denúncias sobre abandono, paralisação e falta de transparência envolvendo a unidade. O caso ganhou repercussão depois da publicação de uma reportagem da revista Sonho & Negócios, que detalhou a situação da escola e trouxe à tona cobranças antigas da comunidade local.
A matéria revelou que a unidade permaneceu mais de dois anos sem funcionamento, atravessando 2024 e 2025 sem atividades regulares. Em vez de um plano claro de recuperação, a escola foi demolida sem que houvesse, até então, a apresentação pública de um novo projeto ou cronograma de obras, o que gerou indignação entre moradores, pais e responsáveis.
Com registros fotográficos, vídeos e relatos diretos da população, a reportagem questionou a ausência de informações oficiais e o impacto da demora para crianças e famílias da região. O conteúdo rapidamente passou a circular em redes sociais e grupos comunitários, ampliando a pressão sobre a administração municipal.
Poucos dias após a publicação, no dia 22 de janeiro de 2026, representantes da Prefeitura realizaram uma visita técnica ao local. Estiveram presentes o secretário de Obras, Paulo Onety, e o secretário de Meio Ambiente, Marcelo, para alinhar os últimos detalhes que antecedem o início da reconstrução da escola.

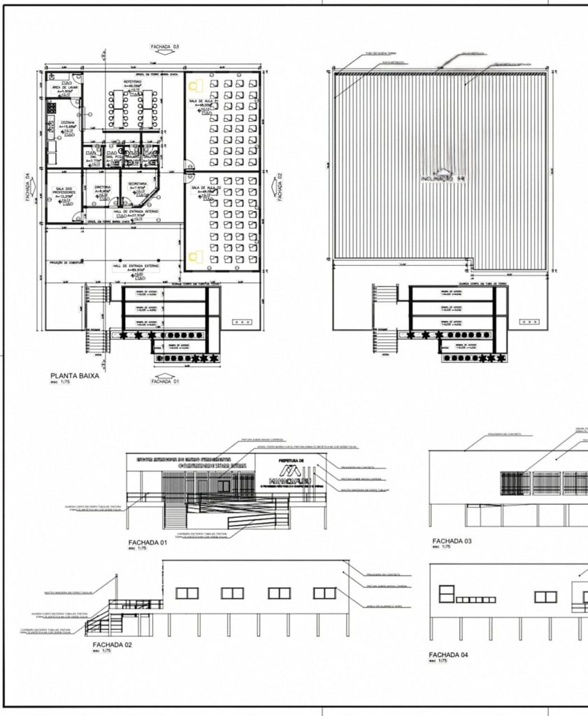
Segundo informações divulgadas durante a visita, a nova Escola Senador Feijó contará com um projeto arquitetônico moderno, seguindo padrões atualizados de acessibilidade, conforto e organização dos espaços, com o objetivo de oferecer melhores condições de aprendizado e inclusão aos alunos da rede municipal.
Embora o poder público não tenha atribuído oficialmente a retomada do processo à reportagem, o intervalo entre a denúncia e a movimentação prática chamou atenção. Para moradores, o episódio reforça a importância da imprensa independente como instrumento de fiscalização e de voz da comunidade.
A Sonho & Negócios, responsável pela primeira denúncia, afirmou que continuará acompanhando o andamento da obra para garantir que o projeto não volte a ficar apenas no papel. Para a revista, informar não é criar conflito, mas exigir prazos, clareza e respeito à população.
O caso da Escola Senador Feijó evidencia como a exposição pública pode acelerar respostas institucionais e reacender compromissos que estavam paralisados. Em Campinas do Norte, a expectativa agora é que a promessa de reconstrução se transforme, de fato, em realidade.

Leia mais:
